Applicable Environment

1. When a mixing main unit needs to group with multiple tanks.
2. Small-capacity tank is unable to find compatible mixer.
3. The container itself is not appropriate for installation. (e.g. materials like rubber, plastic, fiber glass etc.)
4. Tank or blades need to be removed and cleaned frequently.    


01.jpg



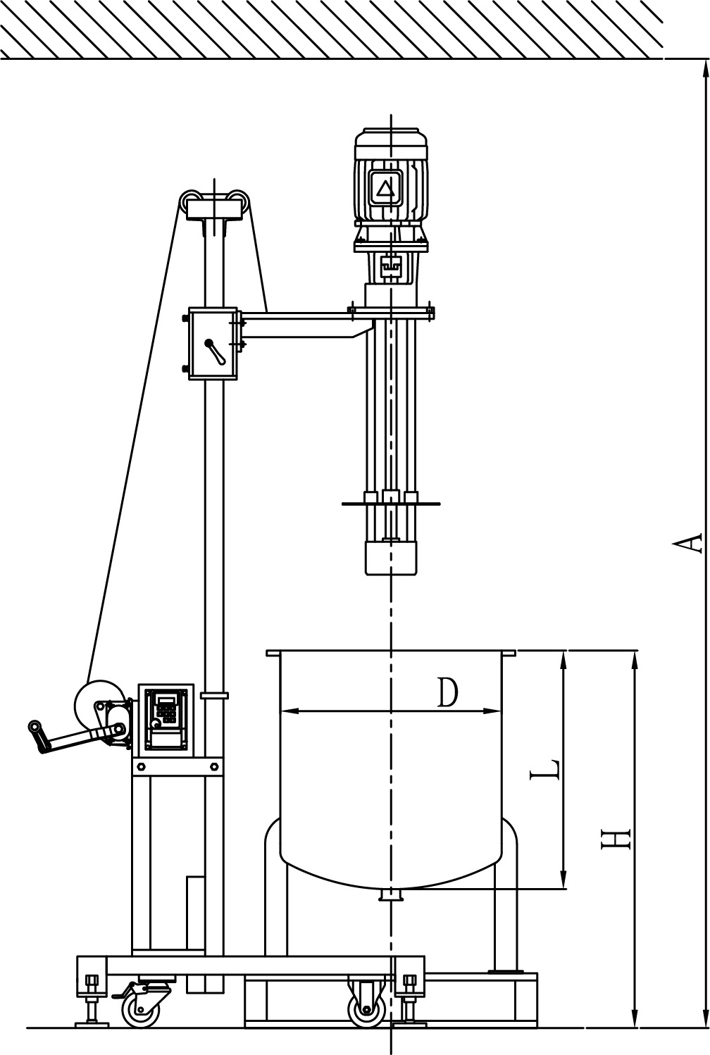
D: Outer diameter of tank

    (max. width of pallet or cart)
L: Depth of tank
H: Height from the top of tank to ground
    
 (max. width of pallet or cart)

A: Limit height from ceiling to ground





1-2.png


分隔線.jpg

Remark:   
Because the dimension of tank is different, the frame doesn't have standardized specification. In order to ensure the tank can be placed in and removed from the frames, please provide the max. outer diameter of tank (D), depth of tank (L), height from the top of tank to ground (H) etc. for designing.
If the tank has to be placed on the cart or moved in from the pallet, please make sure to notify us. Detailed descriptions are also required for the frames to be used with different sizes of tanks.